Jaén, España
Reforma Integral Vivienda
El proyecto se enfocó en la reforma integral de todo el inmueble y el cambio de distribución de la antigua zona de servicio
Este inmueble construido en 1964 no había sido reformado en 61 años. Todo, en general, estaba inutilizable por lo que no se pudo conservar nada. Las puertas eran de mala calidad, los acabados demasiado obsoletos, la instalación eléctrica estaba en un estado lamentable, la fontanería picada, etc.
Además el inmueble tenía una muy mala distribución en la antigua zona de servicio y contaba solo con un baño completo y un aseo. En la distribución original, la zona de servicio, estaba dividida en cocina, habitación para el servicio, lavadero y aseo con un inodoro al que había que entrar forzosamente a través del lavadero. Por lo tanto disfuncional

El proyecto renovó y modernizó todo el inmueble, sacó un segundo baño completo, optimizó el espacio de la cocina y mejoró la eficiencia energética.
Hicimos un despiece de solería estancia por estancia para que la constructora colocase las baldosas exactamente dónde queríamos y obtener ese efecto de suelo de madera antiguo (en el que cada habitación tiene un dibujo distinto) pero con las ventajas de un porcelánico moderno.
Para los baños elaboramos dos diseños modernos ayudándonos de infografías y modelado 3D para que la propiedad pudiera hacerse una idea del acabado final. También hicimos un despiece de alicatados para cada baño
Ubicación:
Cliente:
Tipología:
Superficie:
Año:
Jaén, España
Privado
Vivienda, Residencial
143m2
2025


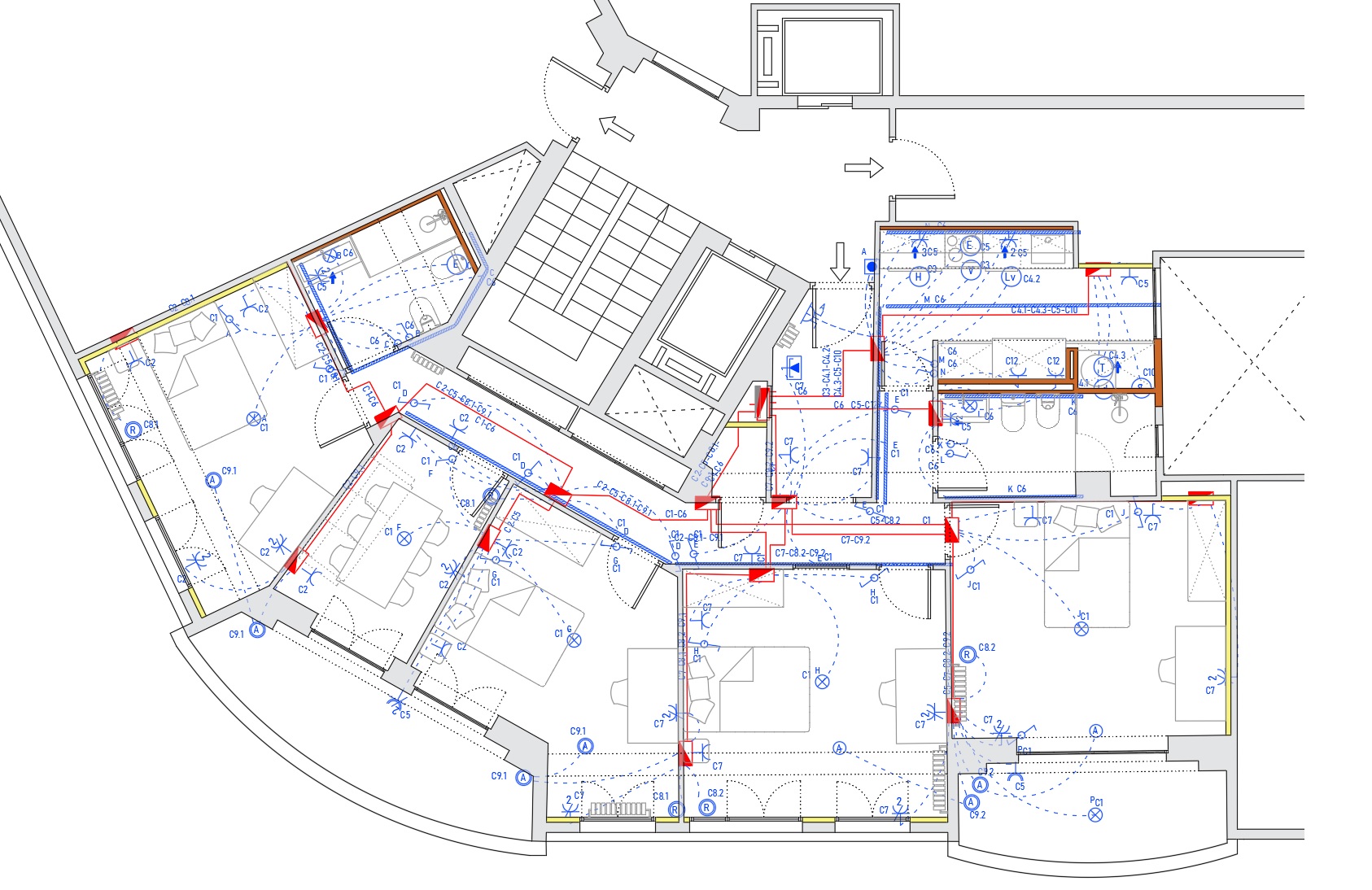
Elaboramos un proyecto de instalación eléctrica completo para la vivienda, calculado según el Reglamento Electrotécnico de Baja Tensión (REBT) y el Código Técnico de la Edificación. Dimensionamos la Derivación Individual desde el contador hasta la vivienda así como todas las secciones de cable de la vivienda y componentes del cuadro eléctrico. La propiedad recibió un boletín eléctrico visado en industria y minas que legalizaba la instalación
En cuanto a la derivación individual, el hueco de instalaciones era demasiado estrecho como para pasar tubos por lo que tuvimos que replantearla por uno de los patios.
También elaboramos un proyecto de instalación de fontanería y climatización para el inmueble acorde a normativa. Se realizaron cálculos de secciones, pendientes y longitudes máximas de acuerdo al código técnico de la edificación.


Dedicamos especial cuidado a tres estancias del inmueble (cocina y baños) para los cuales se hicieron proyectos individualizados, infografías y detalles constructivos a muy pequeña escala. Todo con el objetivo de que el acabado final fuera perfecto
La antigua habitación de servicio se eliminó y el espacio resultante se le dio a la cocina y al nuevo baño completo. Para la cocina optamos por una distribución en pasillo con zona de trabajo a la izquierda y muebles de almacenamiento a la derecha. En cuanto al nuevo baño, diseñamos una ducha cabina amplia y mediante un cuidadoso estudio de instalaciones conseguimos desplazar los sanitarios. Todo con el objetivo de lograr una distribución óptima, funcional y con un diseño moderno








