



.jpg)


<<Acceda al Proyecto haciendo CLICK sobre el PLANO>>
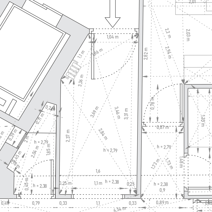
1.0. LEVANTAMIENTO:
Mediremos su inmueble de forma precisa utilizando escaneado 3D, fotogrametría, metro laser, triangulaciones, arreglos, etc. Identificaremos elementos singulares: elementos comunitarios, estructurales, etc, para posteriormente decidir qué mantener y qué demoler. El resultado final será un plano fiel a la realidad

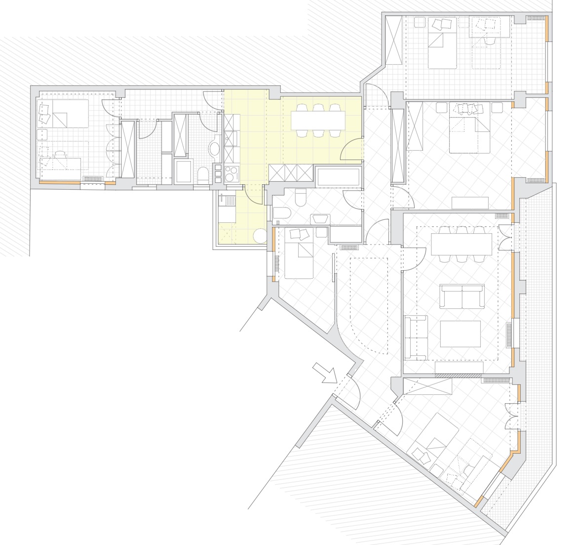
2.0. PROYECTO BÁSICO:
Dibujaremos plantas y alzados con la distribución final que tendrá el inmueble, con una propuesta de mobiliario, superficies y medidas generales.

3.0. TRABAJOS PREVIOS:
Realizaremos un plano de demoliciones con todas las actuaciones a realizar: derribos, desmontajes de carpinterías, levantado de suelos, etc. Dentro de este plano encontrará advertencias para aquellas zonas que identifiquemos como peligrosas por riesgo de dañar la estructura o instalaciones comunitarias.

4.1. CONSTRUCCIÓN / ALBAÑILERÍA:
Elaboraremos planos de albañilería con el tipo de tabiquería a utilizar, tipos de trasdosados, insuflados de aislamiento en cámara de aire, alisados, pintados, recrecidos de tabiquerías, azulejos y especificaciones técnicas y estéticas de colocación, etc.

4.2. CONSTRUCCIÓN / SOLERÍA:
Elaboraremos planos de solería con el tipo de suelo, dimensiones de baldosa, especificaciones técnicas y estéticas, tipo de rejuntado y juntas de dilatación, forma de colocación, especificaciones de materiales adhesivos y plano de despieces de solería.

4.3. CONSTRUCCIÓN / TECHOS:
Elaboraremos planos de techos, falsos techos, falsas vigas y foseados con especificaciones técnicas, detalles constructivos y acabados finales.

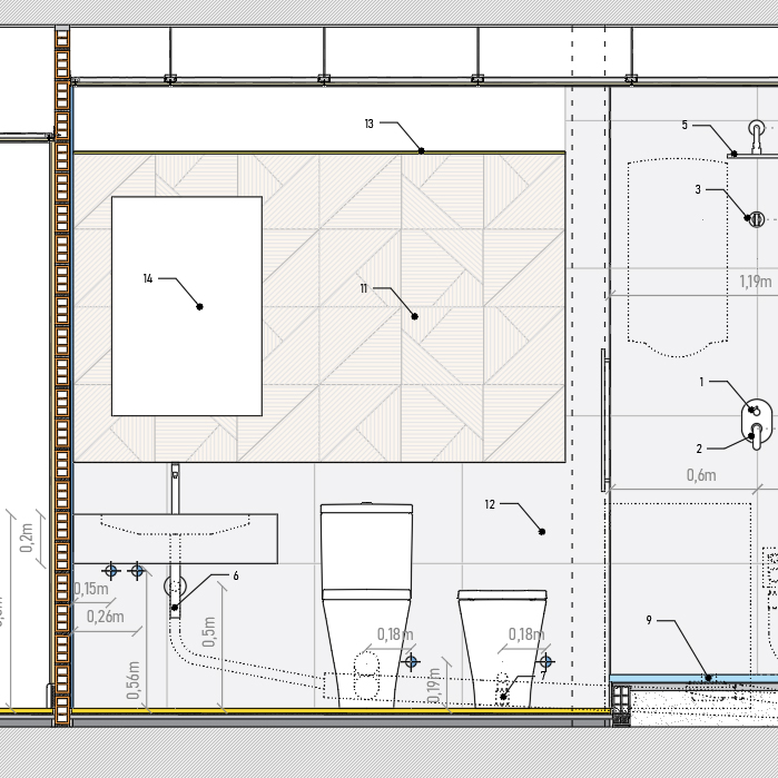
4.4. CONSTRUCCIÓN / DETALLES:
Elaboraremos planos de detalles constructivos generales a mediana escala y de detalles constructivos específicos a muy pequeña escala para estancias concretas como baños y cocinas. Con el objetivo de que el acabado final sea lo más exacto posible a las infografías

4.5. CONSTRUCCIÓN / CARPINTERÍA INTERIOR:
Elaboraremos planos de memorias de carpinterías interiores (puertas de paso y acceso a la vivienda) con especificaciones técnicas y materiales del tipo de puertas a colocar, cerrajerías, etc

4.6. CONSTRUCCIÓN / CARPINTERÍA EXTERIOR
Elaboraremos planos de memoria de carpinterías exteriores que cumplan con normativa y garanticen la seguridad frente al viento y acondicionamiento térmico. Definiremos el tipo de perfilería a utilizar, tipo de vidrios, tipo de manillares, etc

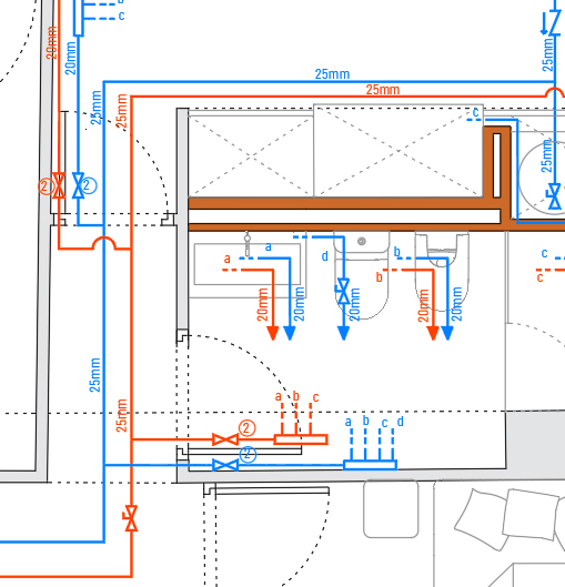
5.1. INSTALACIONES / FONTANERÍA
Calcularemos las instalaciones de fontanería de su vivienda para que cumplan la normativa y sean seguras y elaboraremos un plano de fontanería con secciones, trazados y conexionados a la red existente.

5.2. INSTALACIONES / SANEAMIENTO
Calcularemos el saneamiento para que cumpla la normativa y elaboraremos un plano de trazados y secciones. En caso de detectar fibrocemento le diremos como actuar

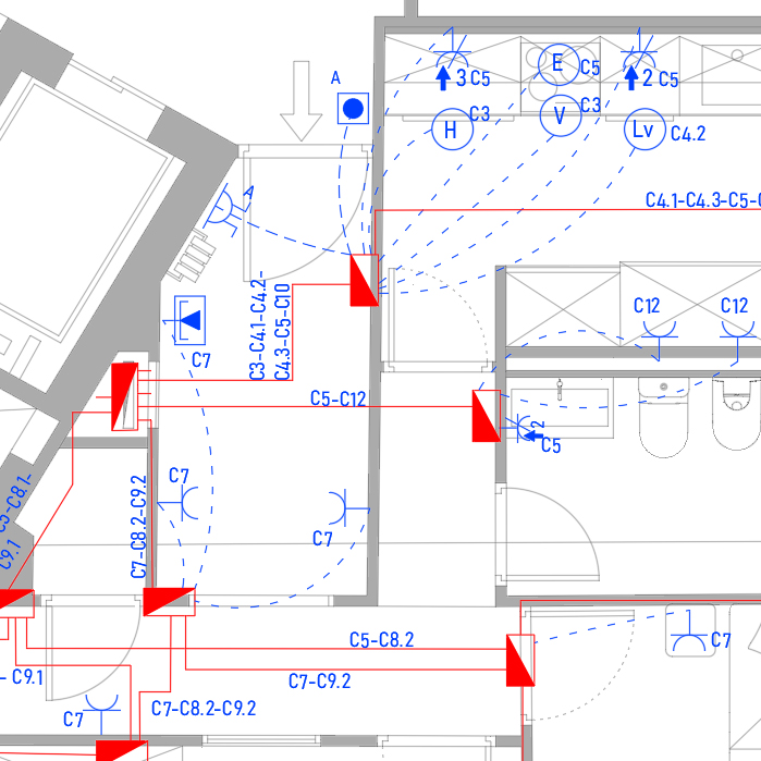
5.3. INSTALACIONES / VENTILACIÓN & CLIMATIZACIÓN
Dimensionaremos las instalaciones de ventilación y climatización. Además replantearemos el trazado de los conductos y la colocación de preinstalaciones de aire acondicionado para que si algún día desea colocar un split no tenga tubos vistos.

5.4. INSTALACIONES / ELECTRICIDAD I
Calcularemos la instalación eléctrica de su vivienda; incluyendo la derivación individual desde el contador hasta el cuadro interior; el cuadro y sus componentes; las secciones de cable; los lúmenes necesarios de cada luminaria, etc. Además elaboraremos planos de colocación de mecanismos, trazados de cajas de registro, etc

5.4.1 INSTALACIONES / ELECTRICIDAD II
Elaboraremos el esquema de instalación eléctrica de su vivienda (diagrama unifilar) necesario para elaborar el boletín eléctrico (CIE) y realizaremos un esquema de montaje del cuadro eléctrico de su vivienda con todos los componentes necesarios (magnetotérmicos, diferenciales, etc) correctamente dimensionados

5.5. INSTALACIONES / TELECO
Realizaremos un plano de telecomunicaciones para su vivienda con puntos de toma por cable para internet, teléfono y televisión.

6. INFOGRAFÍAS:
Realizaremos infografías hiperrealistas para los espacios más singulares de su vivienda como cocina, baños, etc. De tal forma que pueda visualizar los espacios antes incluso de que esten ejecutados.
